Hollister district polling residents on another bond
Hollister School District trustees took steps toward pursuing a second general obligation facilities bond during a board meeting last week.
City represented on Mobility Partnership with mayor
Three appointments are filled for San Benito County agencies on the revived Mobility Partnership alliance with the Santa Clara County Valley Transportation Authority collaborating on plans for the future of regional highway expansion.
San Juan considers banning outdoor pot cultivation
A medical pot dispensary asked San Juan Bautista officials to rescind a ban against such operations, and the city's officials indicated they might move in the opposite direction and tighten current regulations.
County to pursue 1 percent tax in November 2016
As expected, San Benito County supervisors this week agreed to pursue a 1 percent sales tax in unincorporated areas on the November ballot.
SBHS trustees stray off agenda on bond discussion
San Benito High School Superintendent John Perales asked trustees to give direction to staff to explore a second bond, even though the topic was not part of the agenda for the special meeting Tuesday night.
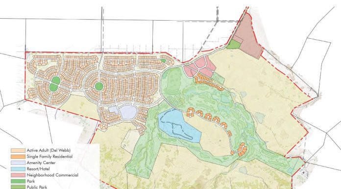
County board approves Del Webb project at San Juan Oaks
San Benito County supervisors on Tuesday approved the Del Webb project at San Juan Oaks featuring more than 1,000 homes aimed at active adults age 55 and over.
Council wants ideas for downtown plot, but also ample time
Hollister council members Monday approved sending out a request for proposals to develop the grassy plot in the 400 block of San Benito Street, but insisted on having more time than the stated Dec. 31 goal for closing escrow due to the importance of the lot.
County board to weigh final approval on Del Webb project
San Benito County supervisors on Tuesday are set to consider the Del Webb project at San Juan Oaks featuring more than 1,000 homes aimed at active adults age 55 and over.
City may consider proposals for 400 block plot
Two developers have approached the city about trying to purchase the grassy plot on the 400 block of San Benito Street.
Judge Sanders is a voice of reason with singing group
Steven Sanders is exceptional at a couple of things: working really hard and singing really cool—doo-wop cool.

















