Gilroy police arrest alleged rapist of mentally disabled teen
Police arrested Gyasi Terran earlier this afternoon for
Best in state compete in Gymkhana finals
San Juan Bautista resident Joey Mosler has been practicing three
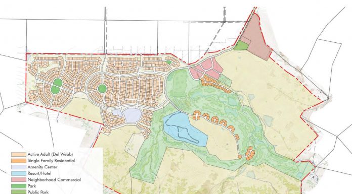
Del Webb company pulling out of 1k homes at San Juan Oaks
The company behind the 1,100-home Del Webb development at San Juan Oaks Golf Club has informed county officials it is backing out of the approved project.
Rodeo time
The San Benito County Saddle Horse Show & Rodeo kicked off rodeo week on June 22 with the annual rodeo parade in downtown Hollister.
The procession began with a traditional cattle drive down the middle of San Benito Street, featuring dozens of steers, longhorn cattle...
Lowe’s has no ‘timetable’ for starting construction
The store is slated for construction along the new Highway 25












