Chamber event to highlight Pavilion, fair at Bolado
The newly renovated Pavilion at Bolado Park will host this week's After Hours event organized by the San Benito County Chamber of Commerce & Visitors Bureau.
Hollister puts soaring enthusiasts in cloud nine
When 14-year-old Adam Shapiro of Pacific Grove came to Hollister recently, his goal was to fly where raptors hang out as they glide effortlessly above the rolling hills around the town known more for bikers than pilots—and to do it solo.
Farr Super Bowl prediction: Hollister airport landing spot of choice
Congressman Sam Farr during his annual town hall meeting here made a prediction about the next Super Bowl, and it involved Hollister.
County officials to meet with feds at San Justo Reservoir
San Benito County officials are planning to meet Monday with representatives of the U.S. Bureau of Reclamation at San Justo Reservoir to discuss the eradication plan for the site.
Kosmicki: Great Mussel Bakeoff at San Justo Reservoir
In devising a list of “100 Ways to Eradicate a Reservoir Infested with Zebra Mussels in Under a Decade” for the research journal Stuff, an idea struck me as poignantly appropriate, amusing, vengeful and satisfying.
Goodwill moving to former Ace Hardware spot
The Hollister Goodwill store is preparing to move into the former home of Ace Hardware just across the Highway 25 bypass.
Postman Rovella’s long career is in the bag
Hollister resident Mike Rovella remembers asking for the day off from his duties as a letter carrier to participate in his graduation ceremony from San Benito High School.
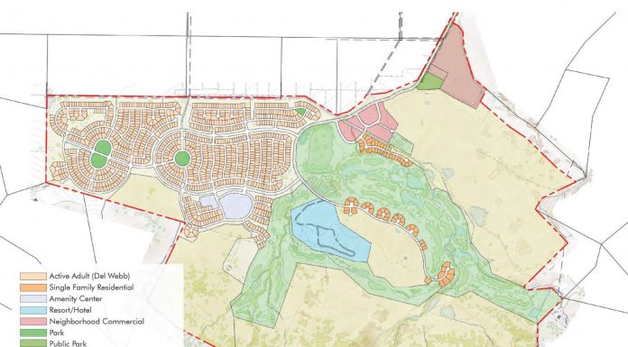
Del Webb gears up for scrutiny, planned construction
Del Webb and San Juan Oaks Golf Club are getting set to take their final plans before county officials in the coming weeks and potentially start construction on nearly 1,100 homes as part of a planned senior-living community in the spring.
Water Matters: Will we get a strong El Niño this winter?
You may have heard a strong El Niño could bring lots of rain this winter, but there’s another weather pattern in the region that might keep things dry. It’s a ridge of high-pressure air that’s created a huge patch of warm water off the coast, nicknamed “the Blob.”
K9 trainer prepares dogs for personal protection, police
Deleta McKenzie-Jones was a teenager in Bakersfield when she began working with her first dog that she described as an “out-of-control German shepherd” that a friend helped her train. Today, she owns and operates K9 Ambassador, a world-class dog-training facility in Hollister. Living mostly along the Central Coast of California for 20 years, she trained other people’s dogs, even when working in Hollister as a firefighter from 1985 to the late 90s.


















