Water at crux of debate over Tres Pinos project
A proposal for a 21-home subdivision in Tres Pinos, with a population of about 500, may come down to availability of water.
Insurance dispute prompts cancellation at Hazel Hawkins
Consumers of Aetna Health Insurance in San Benito County haven’t been able to use those plans at Hazel Hawkins Memorial Hospital since the start of the year due to a contract dispute.
Council votes 3-2 to censure Rolan Resendiz for social media posts
Hollister city council members arrived at Tuesday’s meeting ready for combat.
Most of a standing-room-only crowd of 200 showed up to plead with their elected representatives for peace.
As the council considered a proposal to formally censure Councilmember Rolan Resendiz for repeated negative social media posts,...
Panetta has busy first week in Capitol
Congressman Jimmy Panetta’s first week of his second term was a busy one, as the new Democratic majority in the House of Representatives faced new responsibilities and a government shutdown.
Panetta and his Congressional colleagues were sworn in en masse Jan. 3 in the Capitol.
By...
Election 2020: District Two supervisor
The Free Lance takes a first look at the District Two county supervisor race. The Free Lance will look at the candidates in District One and District Five next week. Coverage of candidates’ views on top issues will follow.
One year ago, four-term San Benito...
Zanger’s lead grows in District 1 vote count
In the election for District 1 San Benito County Supervisor, Dom Zanger appears set to edge out incumbent Betsy Dirks, who was appointed to the seat in October 2021. As of Nov. 15, Zanger has received 1,921, or 51.86% of the votes counted in...
Letter: Compromise for new school
The San Benito High School district has formed a committee to begin planning for a second high school in San Benito county. As I have written many times I think this would, to put it nicely, not be a very good thing for the...
Railroad crews repairing track, crossings
A crew of Union Pacific employees is working on the railroad in
Caballero to continue representing San Benito County
Sen. Anna Caballero will continue to represent San Benito County and the Salinas Valley for the next two years until a new senator assumes the district, the Senate Rules Committee announced last week.
Every 10 years a neutral committee completes the redistricting process based on...
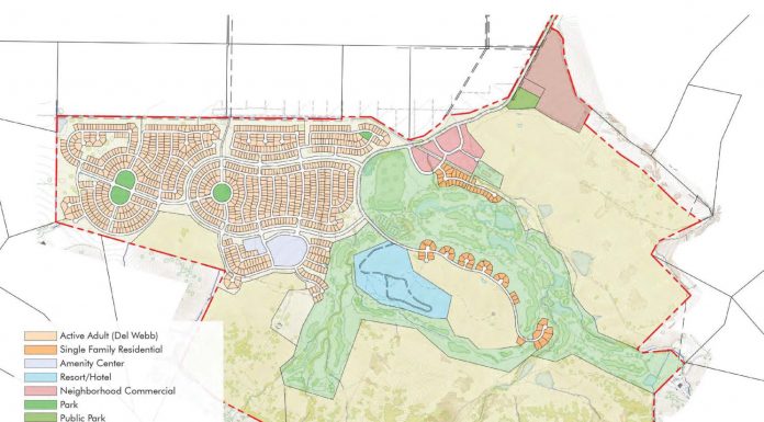
County board approves Del Webb project at San Juan Oaks
San Benito County supervisors on Tuesday approved the Del Webb project at San Juan Oaks featuring more than 1,000 homes aimed at active adults age 55 and over.


















